Goethe.21
STILVOLL UND RUHIG LEBEN.
2 Doppelhaushälften "Ichenhausen Goethe. 21 "
MODERN - EFFIZIENT - FAMILIENFREUNDLICH
Goethe.21 Die klassische Architektur sowie eine solide wertbeständige Bauweise zeichnet dieses Neubauprojekt aus.
Es handelt sich hier um zwei voll unterkellerte Doppelhaushälften in massiver Bauweise.
Die Grundrisse sind gut durchdacht und die Ausstattung ist auf hohem Niveau und kann individuell erweitert werden.
Die sonnigen Häuser bieten mit 156 qm Wohnfläche auch für eine größere Familie genügend Platz.
Sie möchten mehr Informationen zum Neubauprojekt "Goethe.21" in Ichenhausen haben? Dann melden Sie sich gerne jederzeit unter der 08221. 916 68 91
Ihr Ansprechpartner ist Herr Anderka.
Baubeginn im Frühjahr 2021.
Es handelt sich hier um zwei voll unterkellerte Doppelhaushälften in massiver Bauweise.
Die Grundrisse sind gut durchdacht und die Ausstattung ist auf hohem Niveau und kann individuell erweitert werden.
Die sonnigen Häuser bieten mit 156 qm Wohnfläche auch für eine größere Familie genügend Platz.
Sie möchten mehr Informationen zum Neubauprojekt "Goethe.21" in Ichenhausen haben? Dann melden Sie sich gerne jederzeit unter der 08221. 916 68 91
Ihr Ansprechpartner ist Herr Anderka.
Baubeginn im Frühjahr 2021.
Sie haben Interesse?
Dann melden Sie sich jetzt unter der 08221/9166891
Dann melden Sie sich jetzt unter der 08221/9166891
2 moderne Doppelhaushälften mit viel Platz
ruhige und sonnige Wohnlage in Ichenhausen
massive und solide Bauweise voll unterkellert
massive und solide Bauweise mit Vollwärmeschutz
Wohnraumlüftung mit Wärmerückengewinnung
voll unterkellert mit ausgebautem Hobbyraum
Carports und Kfz-Stellplätze
Fußbodenheizung in der gesamten Wohnung
großer Fensterelemente mit 3-fach-Wärmeschutzverglasung
156 qm Wohnfläche
offener Wohn-Ess-Küchenbereich
hochwertige Sanitärausstattung
große Terrassen mit Privatgärten
Wohlfühlbäder mit Tageslicht
89335 Ichenhausen
Impressionen
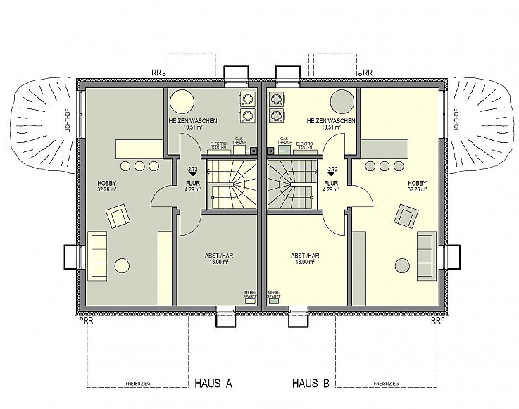
Grundrisse GOETHE. 21
Erdgeschoss
Dachgeschoss
Untergeschoss
Ansichten Goethe. 21
Südansicht I Terrasse
Nordansicht I Hauseingang
Westansicht
Preisliste Goethe. 21
| Nr. | Zimmer | Wohnfläche | Grundstück ca. | Preis | Status |
|---|---|---|---|---|---|
| Haus A | 5 | 152 m² | 392 m² | verkauft | |
| Haus B | 5 | 152 m² | 304 m² | verkauft |
Ichenhausen
Ichenhausen ist eine Verwaltungsgemeinschaft im schwäbischen Landkreis Günzburg und ist unmittelbar an der Günz, einem Nebenfluss der Donau, gelegen. Die historische und traditionsreiche Stadt kann viele Bildungseinrichtungen und zahlreiche Vereine aufweisen. Als Kleinstadt, die alles hat, was zum täglichen Leben benötigt wird, gilt Ichenhausen als äußerst beliebte Wohnlage. Ichenhausen bietet zahlreiche Einkaufsmöglichkeiten, historische Sehenswürdigkeiten oder auch eine Vielzahl an Freizeitangeboten und Einkehrmöglichkeiten. Hier bleiben keine Wünsche offen.
Ich bin damit einverstanden, dass mir Karten von Google angezeigt werden. Es gelten die Datenschutzbedingungen von Google (https://policies.google.com/privacy).
Ich bin einverstanden

